Vragen? Bel 0517-856420
Woning verkopen?   Bel 0517-856420
Woning foto
Verkocht

Noorderbolwerk 8 in Franeker

Specificaties

Aantal kamers : 5 kamers (4 slaapkamers)
Woonoppervlakte : 90 m²
Perceeloppervlakte : 123 m²
Bouwjaar : 1885
Energielabel : C
Prijs € 265.000 K.K.

Woningomschrijving

Sfeervolle tussenwoning op toplocatie aan het Noorderbolwerk

Gelegen op een prachtige locatie aan het Noorderbolwerk vind je deze karakteristieke tussenwoning met maar liefst vier slaapkamers, een zonnige achtertuin op het zuiden en een gezellige pelletkachel. De woning beschikt over energielabel C en ligt op loopafstand van het centrum van Franeker, diverse supermarkten en basisscholen.

Indeling van de woning
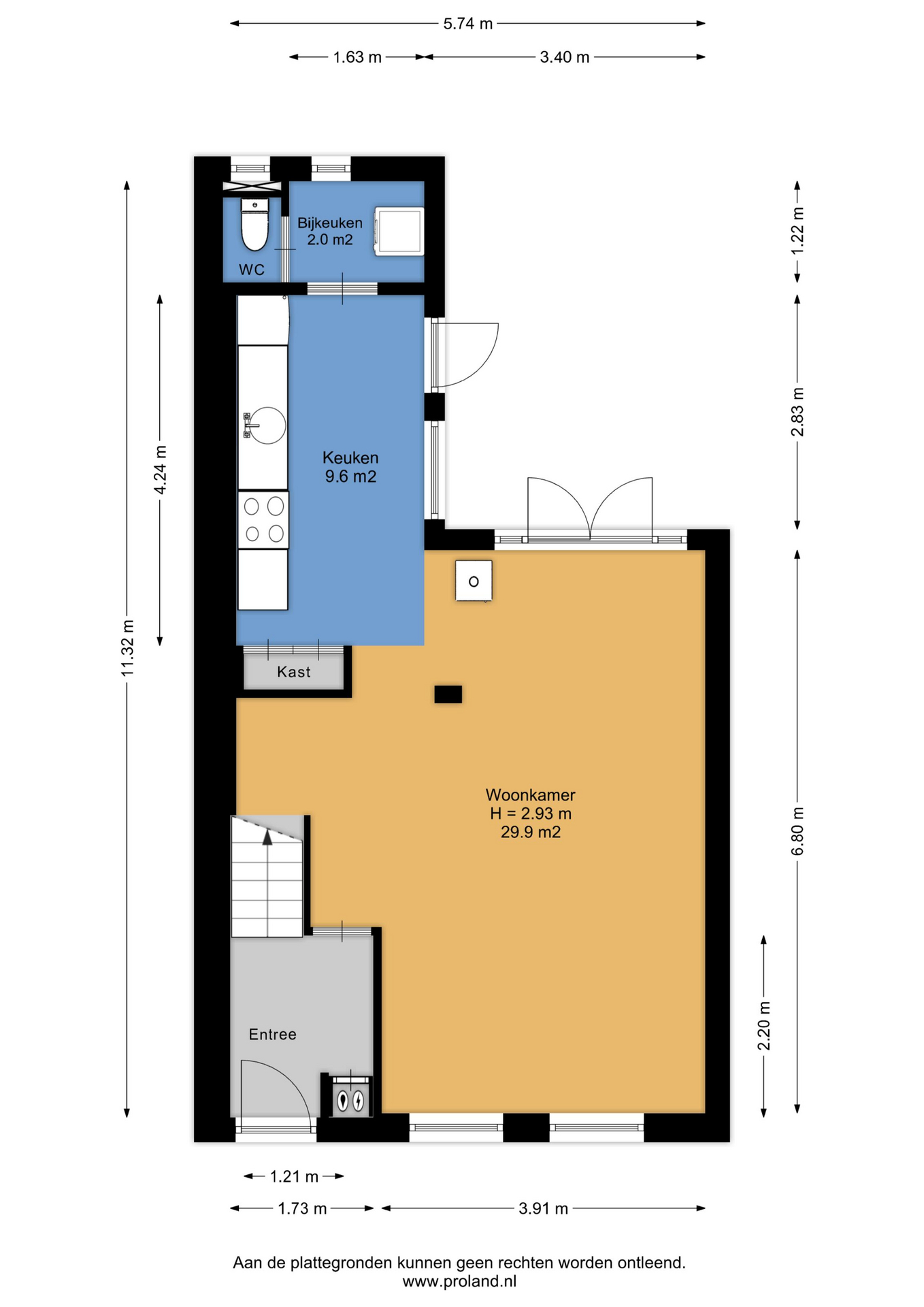
Begane grond

Entree met meterkast en trapopgang. De royale en lichte woonkamer biedt een open verbinding naar de keuken die is voorzien van een gasfornuis, oven, vaatwasser en koel-vriescombinatie. Verwarmen kan hier zowel via radiatoren als via de sfeervolle pelletkachel. Aansluitend bevindt zich de bijkeuken met witgoedaansluitingen en het toilet. Via de openslaande deuren loop je zo de sfeervolle achtertuin in.

Eerste verdieping
Op de eerste verdieping bevinden zich vier slaapkamers en een recent vernieuwde badkamer (2025) met inloopdouche en wastafel.

Achtertuin
De fraai aangelegde achtertuin is gelegen op het zonnige zuiden en vormt een fijne combinatie van groen en bestrating. Dankzij de eigen achterom is de tuin ook praktisch in gebruik. In de achtertuin vind je ook een berging voor fietsen of tuingereedschap.

Bijzonderheden
- Achtertuin op het zuiden met achterom
- Vier slaapkamers
- Beschermd stadsgezicht
 Verwarming via CV-ketel (2017) en pelletkachel
- Energielabel C
- Woonoppervlakte: 90m²
- Perceeloppervlakte: 123m²