Vragen? Bel 0517-856420
Woning verkopen?   Bel 0517-856420
Woning foto
Beschikbaar

Johan Roordastrjitte 9 in Tzummarum

Specificaties

Aantal kamers : 5 kamers (4 slaapkamers)
Woonoppervlakte : 114 m²
Perceeloppervlakte : 225 m²
Bouwjaar : 1970
Energielabel : A++
Prijs € 265.000 k.k.

Woningomschrijving

Instapklare hoekwoning met royale tuin en vier slaapkamers!

Deze compleet gerenoveerde hoekwoning biedt volop wooncomfort. De woning beschikt over een royale tuin, vier slaapkamers, een hybride warmtepomp, vloerverwarming op de begane grond én eerste verdieping, 14 zonnepanelen en een energielabel A++. Een fijne combinatie van ruimte, comfort en duurzaamheid.

Indeling van de woning
Begane grond

Entree met meterkast, toilet, trapkast met waterontharder en trapopgang naar de eerste verdieping. De ruime woonkamer is heerlijk licht dankzij de grote raampartijen aan de voor- en achterzijde. De open hoekkeuken is voorzien van diverse inbouwapparatuur, waaronder een inductiekookplaat, combimagnetron, inbouwkoelkast en vaatwasser.
Aansluitend bevindt zich de praktische bijkeuken met witgoedaansluiting. Hier zijn tevens de cv-ketel en de hybride warmtepomp opgesteld.

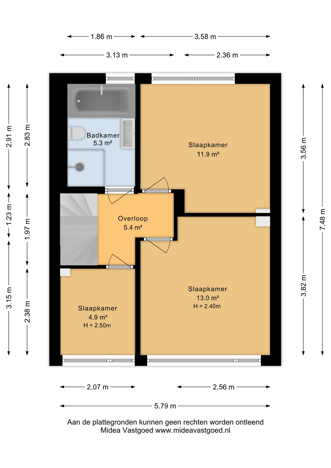
Eerste verdieping
Op de eerste verdieping bevinden zich drie slaapkamers en de badkamer. De badkamer is compleet uitgevoerd en voorzien van een ligbad, inloopdouche, tweede toilet en wastafel.

Tweede verdieping
Via de vaste trap bereik je de tweede verdieping, waar zich de vierde slaapkamer bevindt. Deze ruimte is uitstekend te gebruiken als slaap-, werk- of hobbykamer.

Informatie:
- Vier slaapkamers
- Vloerverwarming op de begane grond en eerste verdieping
- Hybride warmtepomp
- 14 zonnepanelen
- Energielabel A++
- Praktische bijkeuken met witgoedaansluiting