Vragen? Bel 0517-856420
Woning verkopen?   Bel 0517-856420
Woning foto
Verkocht

Buyspad 6 in Harlingen

Specificaties

Aantal kamers : 6 kamers (4 slaapkamers)
Woonoppervlakte : 107 m²
Perceeloppervlakte : 142 m²
Bouwjaar : 1977
Energielabel : C
Prijs € 259.000 k.k.

Woningomschrijving

Nette eengezinswoning met praktijkruimte!

Ben je op zoek naar een woning met extra ruimte, praktijk- of kantoor aan huis? Deze nette eengezinswoning aan het Buyspad 6 biedt het allemaal! De woning beschikt over vier slaapkamers, een zonnige tuin op het zuidwesten en een losstaande praktijkruimte in de achtertuin. Kortom: volop mogelijkheden voor wonen én werken!

Indeling van de woning
Begane grond:

Entree met toilet en trapkast (meterkast). De woonkamer is licht en sfeervol en staat in open verbinding met de moderne keuken, geplaatst in 2023. De keuken is uitgerust met een inbouwmagnetron, oven, gaskookplaat en vaatwasser. Vanuit de keuken is de bijkeuken bereikbaar met aansluitingen voor het witgoed. In de achtertuin is een recent geplaatste praktijkruimte aanwezig, compleet met keukenblok, toilet en airco. Deze ruimte is perfect geschikt als kantoor, salon of atelier aan huis.

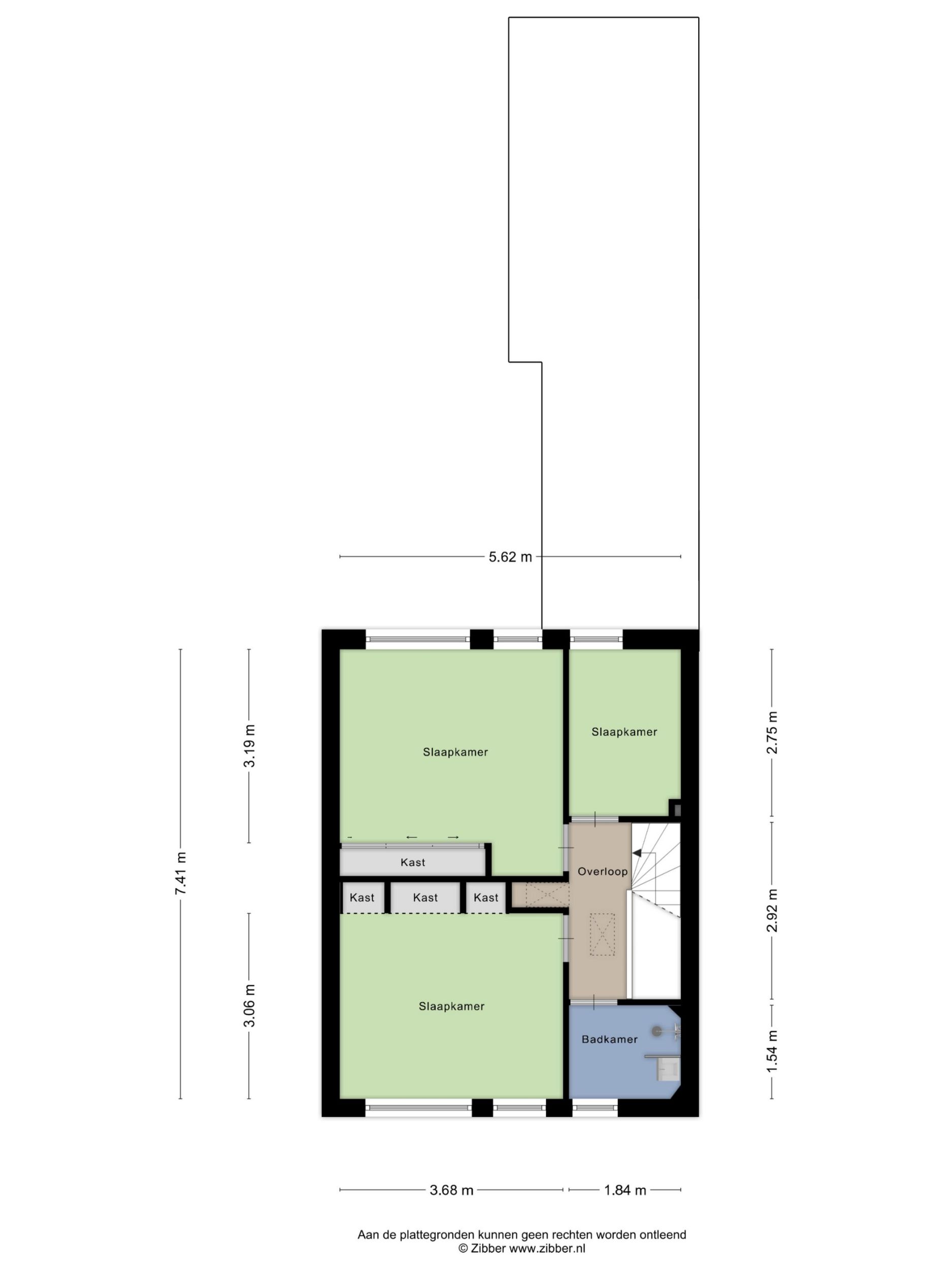
Eerste verdieping:
Hier bevinden zich drie slaapkamers, waarvan de slaapkamer aan de achterzijde is voorzien van een airco. De badkamer is ingedeeld met een inloopdouche en wastafel.

Tweede verdieping (zolder):
Via een vaste trap kom je op de zolderverdieping met de vierde slaapkamer. Daarnaast is er via een vlizotrap toegang tot een bergzolder waar je ook de CV-ketel (Kompakt HRe, 2019, huur) vindt.

Buitenruimte:
De achtertuin ligt op het zuidwesten en biedt veel zonuren. Een fijne tuin om zomers heerlijk te genieten!

Bijzonderheden:
- Woonoppervlakte 107 m²
- Perceeloppervlakte: 142 m²
- Praktijkruimte aan huis met eigen voorzieningen
- Keuken vernieuwd in 2023
- 9 zonnepanelen (huur)
- CV-ketel Kompakt HRe uit 2019 (huur)
- Begane grond voorzien van nieuwe houten kozijnen
- Kunststof kozijnen op de verdieping
- Gelegen in een rustige, kindvriendelijke woonomgeving